物件詳細ページ


売買物件検索

地域を指定
価格を指定

物件種目を指定
この条件で検索する

賃貸物件検索

用途を選択
この条件で検索する

会社案内

会社外観 住まいのコンサルタント 建伸ホーム

〒603-8304
京都市北区紫野郷ノ上町3-8

地図・アクセス方法 TEL.075-464-4777 FAX.075-464-4770 営業時間9:00~19:30
ハトマークサイト京都 at home web HOME'S 不動産ジャパン スーモ オウチーノ 京都グッド

物件詳細

交通 地下鉄東西線「西大路御池駅」徒歩2分、阪急京都線「西院駅」徒歩9分、嵐電嵐山線「西大路三条駅」徒歩3分、JR山陰本線「円町駅」徒歩12分
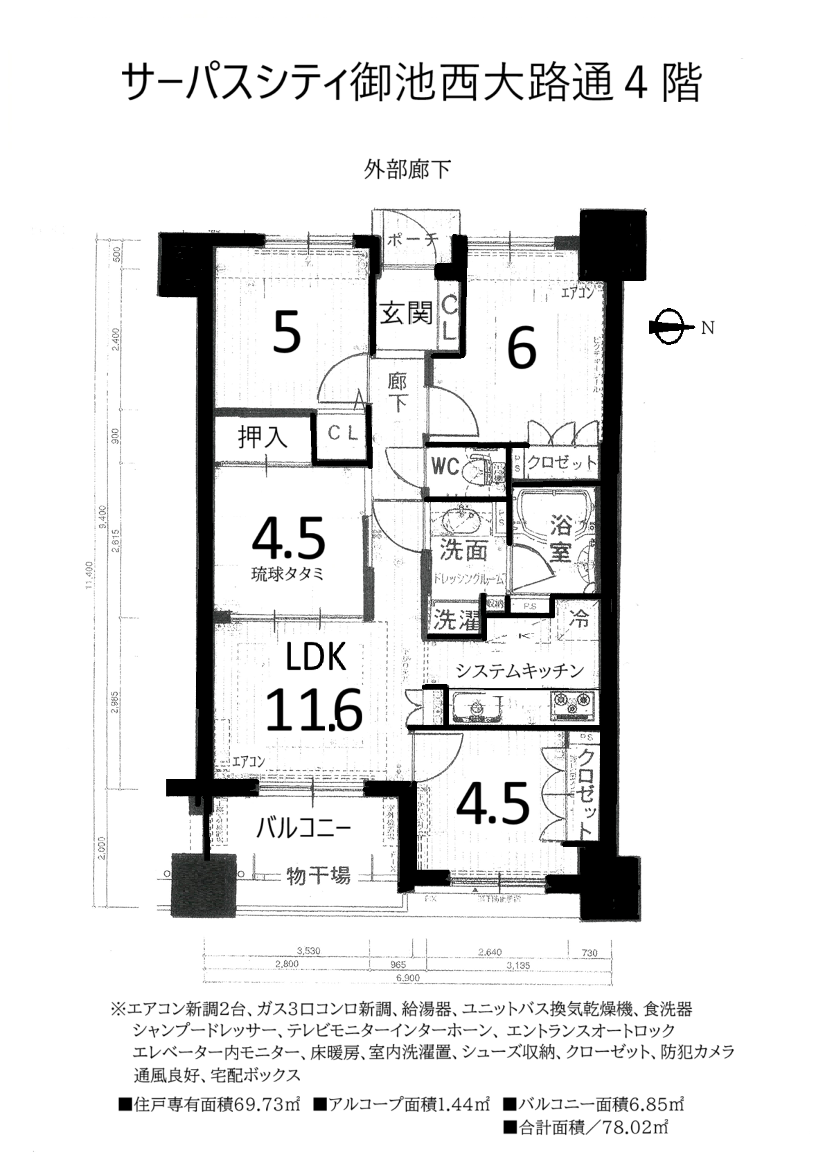
名称 サーパスシティ御池西大路通 分譲タイプ4階部分
物件所在地 京都市中京区西ノ京下合町20番地
賃料 15.8万円 物件種目 分譲貸しマンション
敷金  15万円  礼金  25万円 
構造  鉄筋コンクリート(RC)  建築年月  平成19年9月 
階数 / 階  11階建 / 4階部分  専有面積  壁芯 69.73㎡(21.09坪) 
バルコニー面積  6.85㎡  更新料  賃料の1カ月分 
引渡し  相談 / 即可  現況  空室 
取引態様 専任
特記事項 東向きバルコニー、通風良好、陽当たり良好
賃貸保証加入要す(全保連)
退去時ハウスクリーニング費用必要(金7万円税別)
設備 都市ガス、公営水道、玄関エントランスモニター付オートロック、エレベーター、エアコン、全居室照明器付、床暖房、システムキッチン3口コンロ、温水暖房便座、洗面化粧合、室内洗濯置場、シューズボックス、クローゼット、TVモニターインターホーン、ベルコニー、駐輪場有、宅配ボックス
備考/コメント ガスコンロ新調、エアコン2台新調、温水暖房便座新調、ハウスクリーニング済み

物件検索

物件の条件を選択

用途を選択

この条件で検索する

ページのトップへ戻る